Nouveau
à vendre
Duplex à vendre à Uccle
Moensberg 43/2, 1180 Uccle
€ 260.000
- 2 chambres
- 1 salles de bains
- 69 m²
Description
Idéalement situé à la limite des quatre communes de Drogenbos - Uccle - Beersel et Linkebeek, à 200m de la gare de Moensberg et à proximité du Delhaize de Beersel et du Lycée Français.
Le duplex +/- 69m² situé aux 1er et 2e étages (grenier) d’un petit immeuble de 2 habitations, ce duplex entièrement à rénover (état casco) constitue une excellente opportunité pour un projet sur mesure.
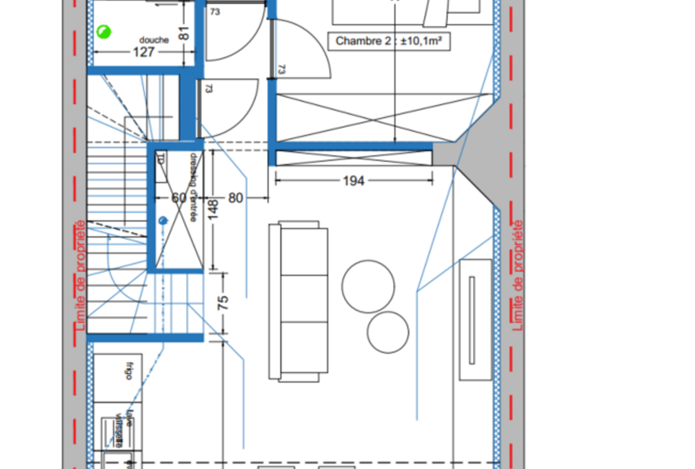
Le 1er étage offre une superficie permettant l’aménagement d’un bel espace de vie d’environ 33,6 m² avec séjour et cuisine ouverte, donnant accès à une agréable terrasse de ± 13 m² orientée sud-ouest.
Côté rue, il est également possible d’aménager une chambre ainsi qu’une salle de bain.
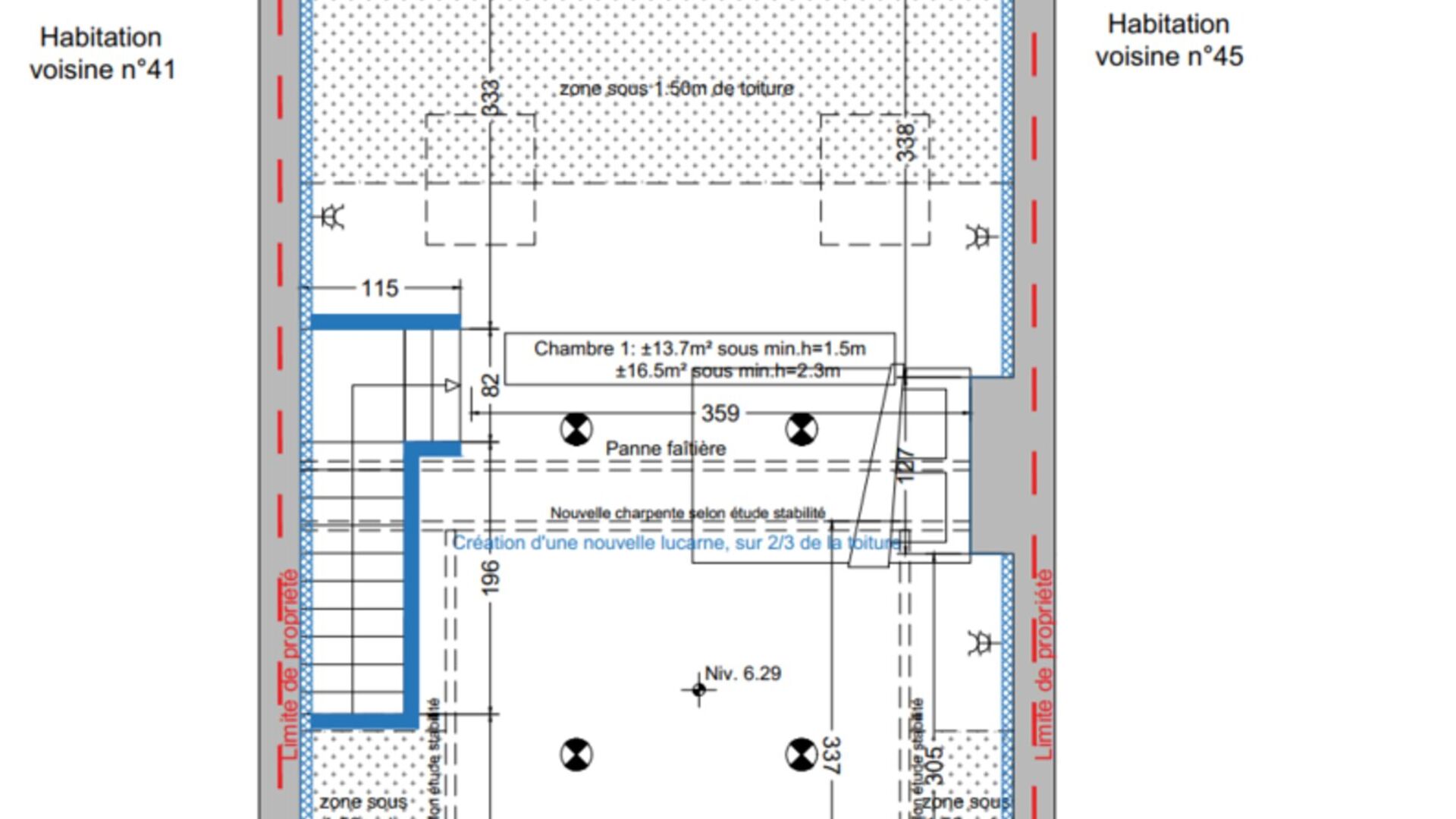
Le niveau supérieur (grenier) permet la création d’une seconde chambre ± 21m², offrant ainsi un potentiel de 2 chambres au total.
Le bien bénéficie également d’une grande cave privative d’environ 12 m².
Un permis d’urbanisme a d’ores et déjà été octroyé pour la transformation en duplex 2 chambres, offrant ainsi un cadre clair et sécurisé pour le projet.
Afin de mieux se projeter, des photos de simulation avant/après travaux ont été réalisées et illustrent les différentes possibilités d’aménagement.
Disponible à l'acte.
Le garage ne fait pas partie de la vente.
Vous désirez plus d’information au sujet de ce bien ? Contactez-nous au 027711635 ou info@maxime-realestate.be
Les informations fournies et les surfaces indiquées sont purement indicatives et n'impliquent aucun engagement juridique.
Details
-
finances
- prix
- € 260.000
- disponibilité
- A l'acte
- bien d'investissement
- non
-
localisation géographique
- localisation géographique
- Campagne
-
confort
- meublé
- non
- ascenseur
- non
- piscine
- non
-
bien
- surface habitable
- 69,00 m²
- construction
- 2 façades
- étage
- 1
- approfondir le nombre
- 2
-
terrain
- jardin
- non
-
énergie
A< 45B46 - 95C96 - 150D151 - 210moyenneE211 - 275F276 - 345G> 345G- epc
- 383 kWh/m²
- classe epc
- G
-
garages / parking
- garages / parking
- non
- parking intérieur
- non
- parking extérieur
- non
-
aménagement
- salon
- 34 m²
- chambres
- 2
- chambre 1
- 11 m²
- chambre 2
- 21 m²
- terrasse
- oui
- terrasse 1
- 13,00 m²
Contactez nous
Nous sommes prêts à vous aider, conseiller et servir. Contactez-nous !