New
for sale
Duplex for sale in Uccle
Moensberg 43/2, 1180 Uccle
€ 260.000
- 2 rooms
- 1 bathrooms
- 69 m²
Description
Ideally located at the border of the four municipalities of Drogenbos, Uccle, Beersel and Linkebeek, just 200 m from Moensberg train station and close to Delhaize Beersel and the Lycée Français.
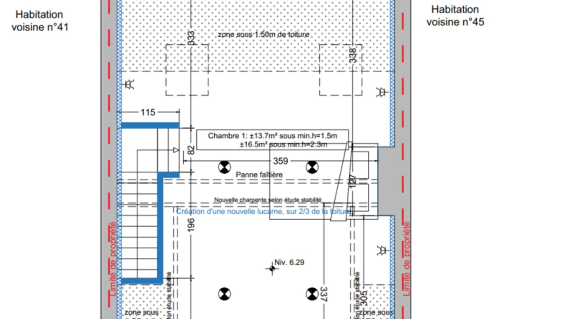
The duplex of ± 69 m² is situated on the 1st and 2nd floors (attic) of a small building with 2 residential units. Fully to be renovated (CASCO condition), it represents an excellent opportunity for a tailor-made project.
The 1st floor offers sufficient space to create a beautiful living area of approximately 33.6 m² with a living room and open kitchen, providing access to a pleasant ± 13 m² south-west facing terrace.
On the street side, it is also possible to create a bedroom and a bathroom.
The upper level (attic) allows for the creation of a second bedroom of ± 21 m², offering a total potential of 2 bedrooms.
The property also benefits from a large private cellar of approximately 12 m².
The garage is not included in the sale.
A building permit has already been granted for the conversion into a 2-bedroom duplex, providing a clear and secure framework for the project.
To help you better visualize the possibilities, before/after renovation simulation photos have been created, illustrating different layout options.
Available upon deed.
Would you like more information about this property? Contact us at +32 2 771 16 35 or info@maxime-realestate.be.
The information provided and the stated surface areas are purely indicative and do not constitute any legal commitment.
Details
-
financial
- price
- € 260.000
- availability
- At deed
- investment
- no
-
location
- location
- Countryside
-
comfort
- furnished
- no
- elevator
- no
- pool
- no
-
property
- surface livable
- 69,00 m²
- construction
- Terraced
- floor
- 1
- amount of floors
- 2
-
terrain
- garden
- no
-
energy
A< 45B46 - 95C96 - 150D151 - 210iterm.E211 - 275F276 - 345G> 345G- epc
- 383 kWh/m²
- epc class
- G
-
garages / parking
- garages / parking
- no
- parking inside
- no
- parking outside
- no
-
division
- living room
- 34 m²
- bedrooms
- 2
- bedroom 1
- 11 m²
- bedroom 2
- 21 m²
- terrace
- yes
- terrace 1
- 13,00 m²
Contact us
We are happy to help, advise and serve you. Do feel free to contact us !