En option
à vendre
Terrain à bâtir à vendre à Kraainem
Kapellelaan, 1950 Kraainem
€ 359.000
Description
Excellente localisation dans un quartier résidentiel à proximité des transports en commun, de l'hôpital St-Luc, des écoles, des grands axes routiers, ...
Ce terrain a une superficie de 4a83ca et a les dimensions suivantes : 12m de largeur et 40m de profondeur.
Règlements : Profondeur rez-de-chaussée max. 15M, profondeur 1er étage max 12M + combles.
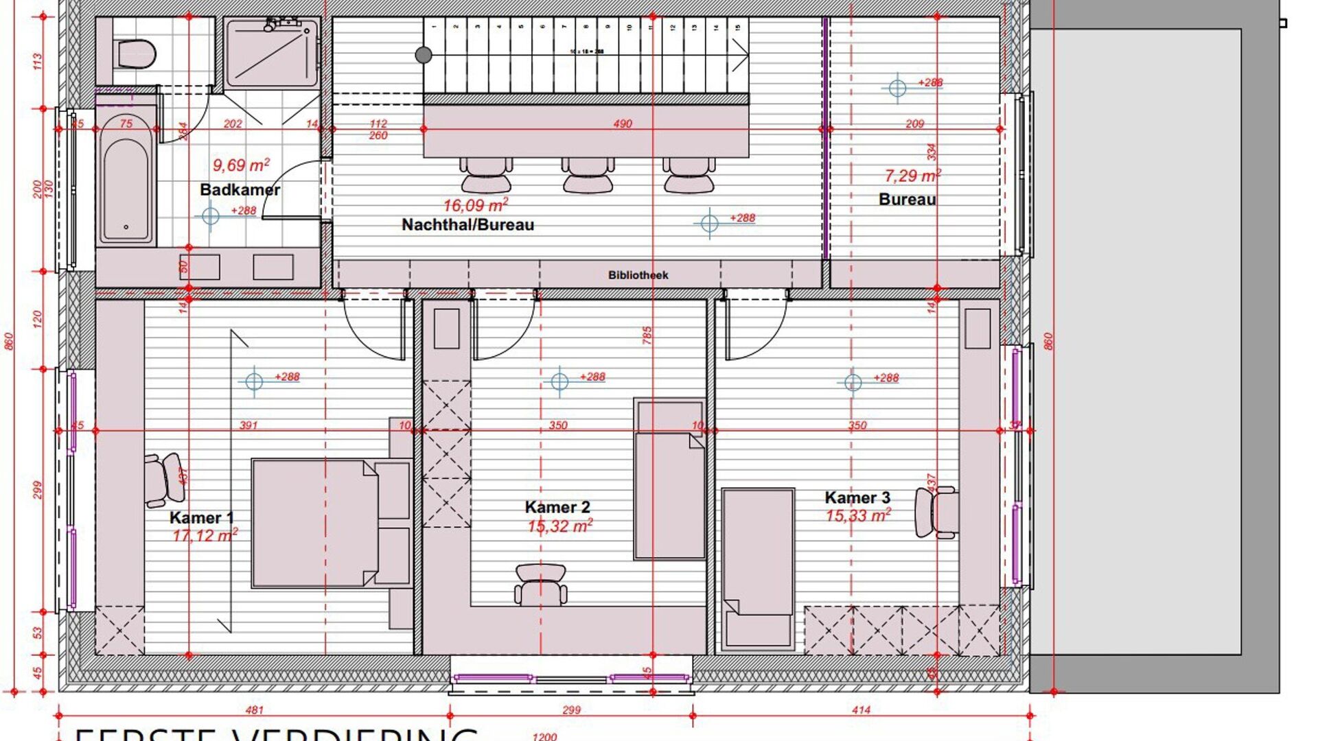
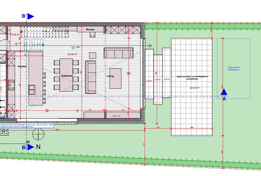
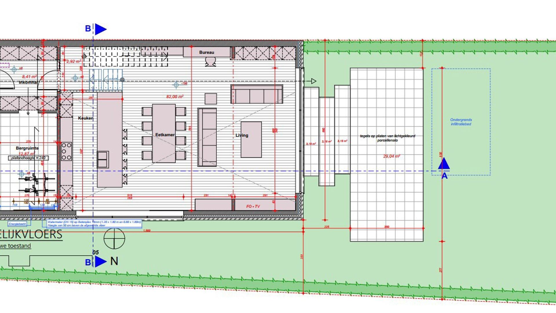
Terrain libre de promoteur, permis disponible avec plans pour construire une maison de 4 chambres et 2 salles de bains +/- 290m².
Ces informations sont purement indicatives et ne constituent pas un avis juridique.
Vous souhaitez plus d’informations sur ce bien ou une visite ? Contactez-nous : 02.771.16.35 ou info@maxime-realestate.be .
Details
-
finances
- prix
- € 359.000
- disponibilité
- A l'acte
- bien d'investissement
- non
-
localisation géographique
- localisation géographique
- Calme
- école
- oui
- transports en commun
- oui
- magasins
- oui
- près d'une autoroute
- oui
-
terrain
- surface au sol
- 483,00 m²
- profondeur du terrain
- 40,00 m
- jardin
- non
-
information sur l'urbanisme
- zone sensible aux inondations
- Pas situé en zone inondable
-
énergie
-
aménagement
- terrasse
- non
Contactez nous
Nous sommes prêts à vous aider, conseiller et servir. Contactez-nous !