for sale

Building ground for sale in Kraainem Kapellelaan, 1950 Kraainem
€ 359.000

Description

Maxime Real Estate offers a beautiful building plot for semi detached house.

Excellent location in a residential street near public transport, St-Luc hospital, schools, major roads...

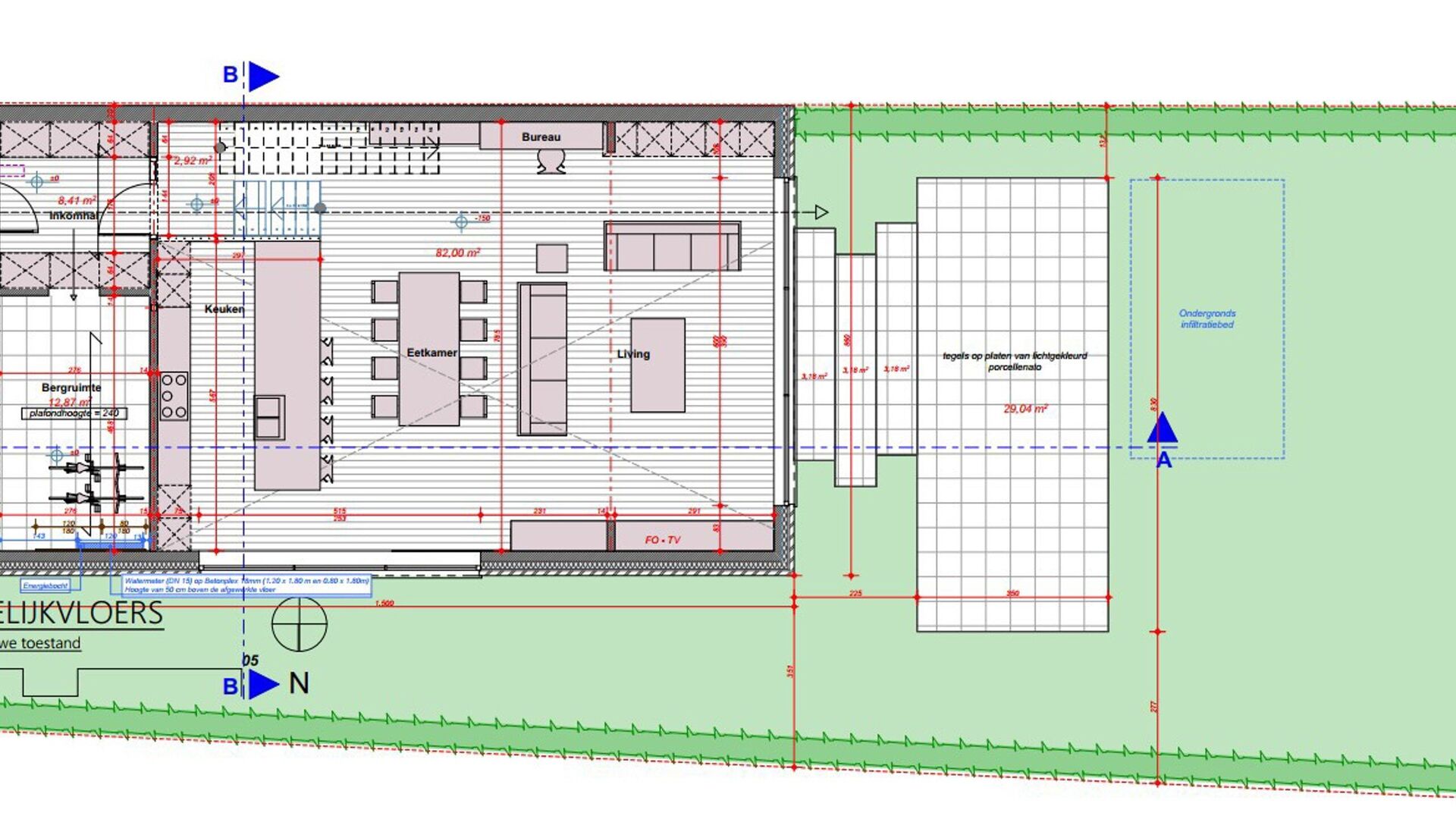
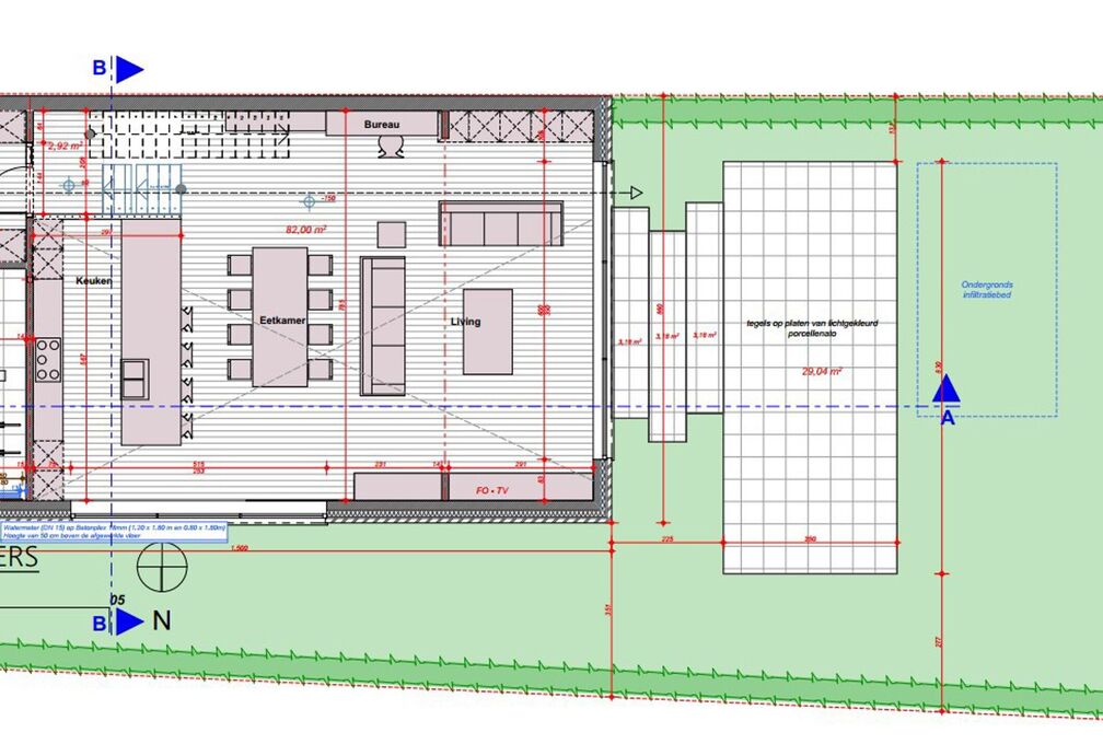
This plot of land has a surface area of ​​4a83ca and has the following dimensions: 12m wide and 40m deep.

Regulations: Depth ground floor max. 15M, depth 1st floor max. 12M + attic level.

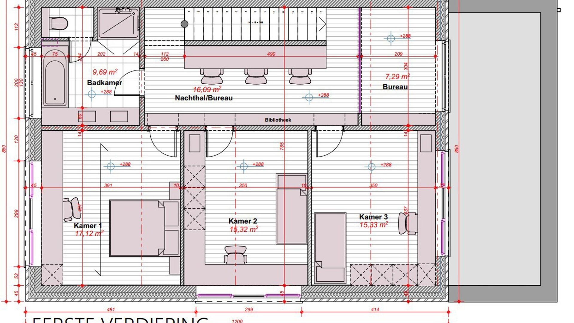
Land free from developer, but permit available with plans for a house to be built with 4 bedrooms, 2 bathrooms +/- 290m².

This information is purely indicative and does not constitute legal advice.

Would you like more information about this property or possibly a viewing? Contact us: 02.771.16.35 or info@maxime-realestate.be .









Maxime Real Estate presents a building plot for a semi detached house.

Excellent location in a residential area near to St-luc hospital, shops, schools, important crossroads,...

This plot of land of 4a83ca and has the following dimensions: 12m wide and 39m deep.
REGULATIONS: Ground floor depth max 15M, 1st floor depth max 12M.

This information is purely indicative and does not constitute a legal consultation.

Would you like more information about this property or possibly a visit? Contact us: 02.771.16.35 or info@maxime-realestate.be .

Details

Contact us

We are happy to help, advise and serve you. Do feel free to contact us !

You need to enter your firstname.
You need to enter your name.
You need to enter your e-mail.
You need to enter a(n) message.
You must agree with our terms and conditions.

Before you leave

Discover our services

Are you a property owner?

Discover your home's value today

Free valuation

Be the first to know about the newest properties on the market

Keep me posted