In optie
te koop
Bouwgrond te koop in Kraainem
Kapellelaan, 1950 Kraainem
€ 359.000
Omschrijving
Uitstekende ligging in een residentiële straat nabij openbaar vervoer, ziekenhuis St-Luc, scholen, belangrijke invalswegen...
Dit perceel grond heeft een oppervlakte van 4a83ca en heeft de volgende afmetingen: 12m breedte en 40m diepte.
Voorschriften: Diepte begane grond max. 15M, diepte 1e verdieping max. 12M + zolderverdiep.
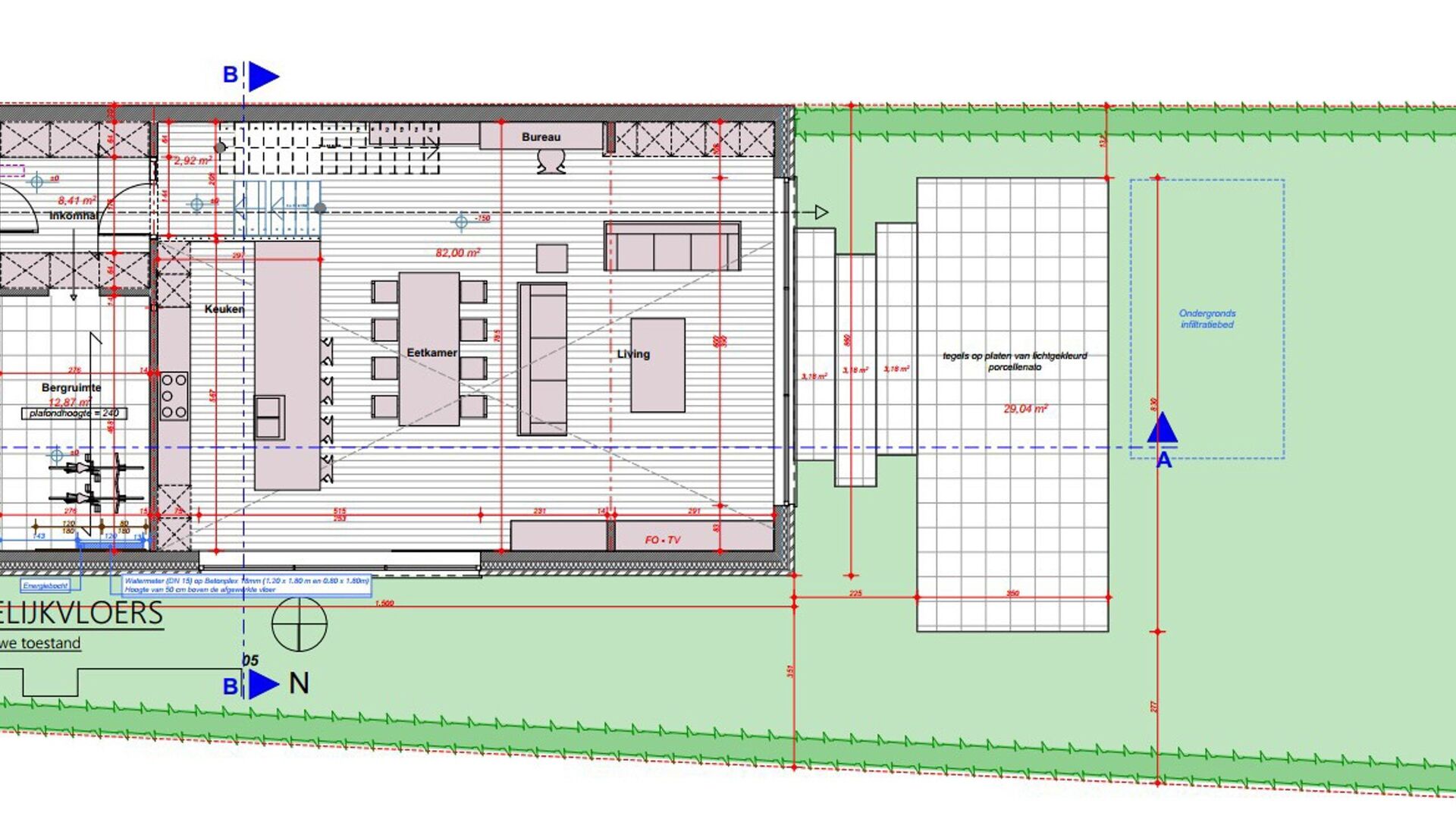
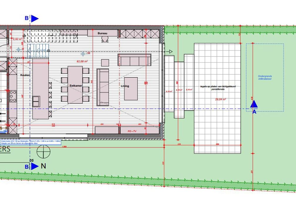
Grond vrij van ontwikkelaar, maar vergunning beschikbaar met plannen voor een te bouwen woning met 4 slaapkamers en 2 badkamers +/- 290m².
Deze informatie is louter indicatief en vormt geenszins een juridisch advies.
Wenst u meer informatie over dit pand of eventueel een bezichtiging? Contacteer ons: 02.771.16.35 of info@maxime-realestate.be .
Details
-
financieel
- prijs
- € 359.000
- beschikbaarheid
- Vanaf akte
- opbrengsteigendom
- nee
-
ligging
- ligging
- Rustig
- omgeving school
- ja
- omgeving openbaar vervoer
- ja
- omgeving winkels
- ja
- omgeving autosnelweg
- ja
-
terrein
- grondoppervlakte
- 483,00 m²
- terreindiepte
- 40,00 m
- tuin
- nee
-
stedenbouwkundige informatie
- overstromingsgevoeliggebied
- Niet gelegen in een overstromingsgevoelig gebied
-
energie
-
indeling
- terras
- nee
Contacteer ons
Wij kijken ernaar uit u verder te helpen, te adviseren en van dienst te zijn. Aarzel niet om contact met ons op te nemen!