Nieuw
te koop
Duplex te koop in Uccle
Moensberg 43/2, 1180 Ukkel
€ 260.000
- 2 kamers
- 1 badkamers
- 69 m²
Omschrijving
Ideaal gelegen op de grens van de vier gemeenten Drogenbos - Ukkel - Beersel en Linkebeek, op 200 m van het station Moensberg en in de nabijheid van Delhaize Beersel en het Lycée Français.
De duplex van ± 69 m², gelegen op de 1e en 2e verdieping (zolder) van een klein gebouw met 2 wooneenheden, is volledig te renoveren (casco) en vormt een uitstekende opportuniteit voor een project op maat.
De 1e verdieping biedt voldoende oppervlakte voor de inrichting van een mooie leefruimte van ongeveer 33,6 m² met woonkamer en open keuken, met toegang tot een aangenaam terras van ± 13 m², georiënteerd op het zuidwesten.
Aan de straatzijde is het eveneens mogelijk een slaapkamer en een badkamer te voorzien.
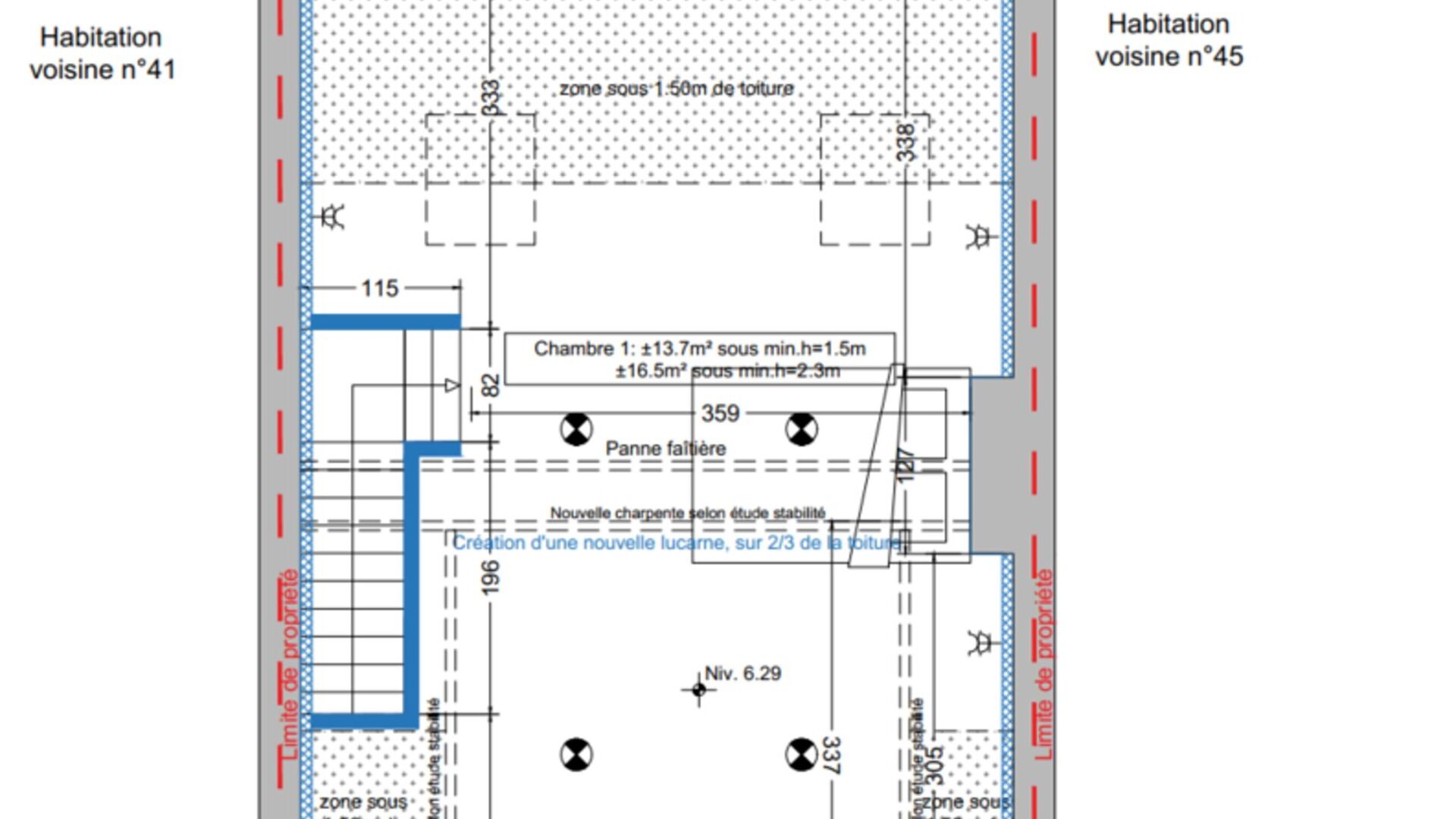
Het bovenste niveau (zolder) laat de inrichting toe van een tweede slaapkamer van ± 21 m², waardoor een totaal van 2 slaapkamers mogelijk is.
Het pand beschikt bovendien over een ruime privatieve kelder van ongeveer 12 m².
Er werd reeds een stedenbouwkundige vergunning verleend voor de omvorming tot een duplex met 2 slaapkamers, wat zorgt voor een duidelijk en juridisch veilig kader voor het project.
Om u beter te laten inleven in de mogelijkheden, werden er simulatiefoto’s vóór/na de werken gemaakt die de verschillende inrichtingsmogelijkheden illustreren.
Beschikbaar bij akte.
Wenst u meer informatie over dit pand? Contacteer ons: 02.771.16.35 of info@maxime-realestate.be
De verstrekte informatie en vermelde oppervlaktes zijn louter indicatief en houden geen enkele juridische verbintenis in.
Details
-
financieel
- prijs
- € 260.000
- beschikbaarheid
- Vanaf akte
- opbrengsteigendom
- nee
-
ligging
- ligging
- Landelijk
-
comfort
- gemeubeld
- nee
- lift
- nee
- zwembad
- nee
-
pand
- bewoonbare opp.
- 69,00 m²
- constructie
- Gesloten
- verdieping
- 1
- aantal verdiepen
- 2
-
terrein
- tuin
- nee
-
energie
A< 45B46 - 95C96 - 150D151 - 210gem.E211 - 275F276 - 345G> 345G- epc
- 383 kWh/m²
- epc klasse
- G
-
garages / parking
- garages / parking
- nee
- binnenparking
- nee
- buitenparking
- nee
-
indeling
- woonkamer
- 34 m²
- slaapkamers
- 2
- slaapkamer 1
- 11 m²
- slaapkamer 2
- 21 m²
- terras
- ja
- terras 1
- 13,00 m²
Contacteer ons
Wij kijken ernaar uit u verder te helpen, te adviseren en van dienst te zijn. Aarzel niet om contact met ons op te nemen!